Casa indipendente in vendita

Varallo Pombia, Via Ticino
€ 65.000
3 locali 3 locali
150 Mq 150 Mq
2 bagni 2 bagni

Casa indipendente in vendita

Varallo Pombia, Via Ticino

Descrizione annuncio

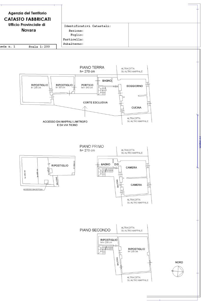
Varallo Pombia, proponiamo una casa semindipendente in vendita, risalente al 1900. Questa proprietà di 150 mq offre ampi spazi interni, ideali per chi cerca una soluzione abitativa versatile. Al piano terra troviamo una sala con una cucina ed bagno. Il piano primo collegato da una scala esterna è distribuito con due camere letto ed un bagno. Al piano sottotetto un ampio locali. Sul fronte cassero e ripostigli. La metratura è riferita a tutta la proprietà. Gli ambienti sono ben distribuiti, garantendo comfort e funzionalità. Uno dei punti di forza di questa casa è il cortile privato, un angolo di tranquillità dove poter trascorrere momenti di relax all'aperto. Inoltre, la presenza di ampi ripostigli offre pratiche soluzioni per l'organizzazione e lo stoccaggio, rendendo la gestione degli spazi ancora più agevole. La casa rappresenta una scelta interessante per chi desidera vivere in un contesto tranquillo, senza rinunciare alla comodità di ampi spazi e alla praticità di un cortile privato. Una soluzione che unisce il fascino delle costruzioni storiche con le esigenze moderne di spazio e funzionalità.

Il nostro ufficio in Varallo Pombia è vicino al comune di Castelletto Sopra Ticino che dista ca 4 km dal Lago Maggiore e da Arona, aderente al comune di Sesto Calende e Dormelletto. A pochi km l'aeroporto di Milano Malpensa e dal casello autostradale.

Mostra tutto

Nelle vicinanze

Trasporto pubblico Trasporto pubblico
Trasporto pubblico
590 m
Varallo Pombia
Varallo Pombia
1,3 Km
Pombia
Pombia
2,0 Km
Ricariche auto elettriche Ricariche auto elettriche
Cascina Cattabretta B&B | e-Station
1,1 Km
Scuole Scuole
Scuola Primaria Statale Giuseppe Di Vittorio
580 m
Scuola Secondaria di I Grado Don Giuseppe Rossi
690 m
Scuola Elementare Don Giovanni Ferrari
2,0 Km
Scuola Elementare
2,8 Km
Scuola Materna Vittorio Fagnoni
2,8 Km
Farmacia Farmacia
Farmacia Fanchini
350 m
Farmacia Mirabella
1,4 Km
Farmacia Berti
1,9 Km
Supermercati Supermercati
Fresco Express
630 m
INS
2,7 Km
Spaccio Balconi
2,9 Km
Negozi Negozi
Cupido Abbigliamento
300 m
Rossi Abbigliamento
1,5 Km
La Bella Alimentare
1,8 Km
Bar Bar
Bar Joker
500 m
Vecchio dollaro
530 m
Bar Caffè Renato
650 m
Star Gate
2,8 Km
Ristoranti Ristoranti
Albergo Fontana
360 m
Pinin
400 m
Hotel Ristorante La Perla
640 m
Al Vecchio Porto
1,3 Km
Ristorante Monticello
1,5 Km
Mostra tutto

Caratteristiche

Rif.:
61141296
Piano:
3 di 3 (Piano basso)
Box:
1
Posti auto:
1
Balconi:
2
Camere da letto:
2
Mostra tutto
Prezzo Prezzo
€ 65.000
Rata mutuo Rata mutuo
€ 309 / mese
Spese annue Spese annue
€ 0
Proponi il tuo prezzoProponi il tuo prezzo

Classe Energetica

G
G
G
G
G
G
G
G
G
EP globale non rinnovabile:
450.00 kW h/m² anno
EP globale rinnovabile:
22.00 kW h/m² anno
EP invernale del fabbricato:
EP estiva del fabbricato:
Anno di costruzione:
1900
Riscaldamento:
Autonomo
Tipo impianto:
A radiatori
Tipo alimentazione:
Metano

Ti interessa visionare l'immobile?

Fissa un appuntamento  Fissa un appuntamento

Richiedi informazioni

Clicca su Leggi per aprire l'informativa
* Questi campi sono obbligatori

Calcola il tuo mutuo

Semplice e senza impegno
Anticipo

( % )
Mutuo

( % )

pochi semplici passi

inserisci i tuoi dati
Questionario completato
Grazie per aver richiesto un appuntamento senza impegno con un nostro Consulente del Credito e Assicurativo.

Hai inserito correttamente tutti i dati necessari e a breve riceverai una e-mail con un link da convalidare per inviare i tuoi dati.
Affiliato
Studio Varallo Pombia Sas
Via Martiri della Libertà, 92 28040 Varallo Pombia (NO)

Il nostro staff


  • Alessandro Lucarelli
    Affiliato
Via Martiri della Libertà, 92 28040 Varallo Pombia (NO)
Zona: Varallo P. - Pombia - Borgo Ticino - Castelletto T.
Mostra su mappa
Orari: Mattino 9.00 - 12.30 Pomeriggio 15.00 - 19.30 - Sabato 9.00-12.30 15-00 - 17.00
Affiliato
Studio Varallo Pombia Sas
Via Martiri della Libertà, 92 28040 Varallo Pombia (NO)

2026 Tecnocasa Franchising S.p.A. - P. IVA 08365160152 - Via Monte Bianco 60/A 20089 Rozzano (MI). Ogni agenzia ha un proprio titolare ed è autonoma. Privacy policy | Policy utilizzo | Cookie policy